上海
关闭
C
成都
H
合肥
杭州
N
南京
S
深圳
苏州
上海
Z
重庆
首页
新房
问答
资讯
登录
/
注册
您的位置:
首页
>
新房
>
中化润达丰滨江樾城
>
在售户型
中化润达丰滨江樾城
在售
地铁沿线
改善优选
品牌楼盘
装修交付
关注楼盘
首页
楼盘动态
在售户型
用户问答
楼盘相册
楼栋信息
楼盘详情
楼盘点评
周边配套
全部(
0
)
4室(
5
)
5室(
1
)
6室(
1
)
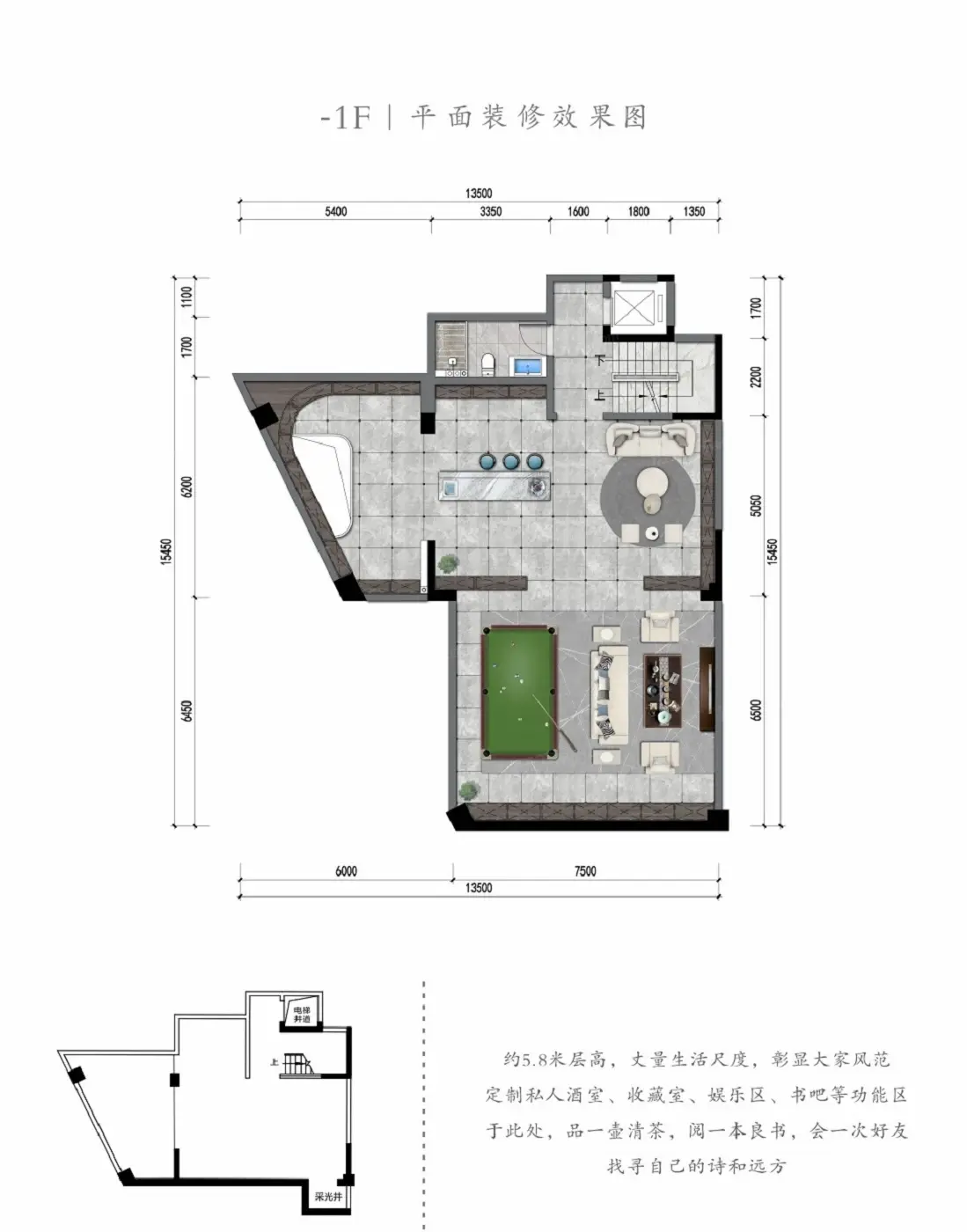
下叠391㎡
下叠391㎡ 5室3厅1厨4卫
65535万
建筑面积391.00㎡