售完
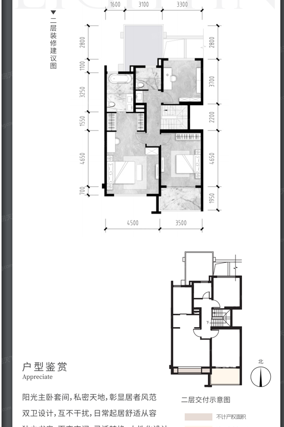
下叠A1户型 4室2厅1厨3卫
65535万建筑面积210.00㎡
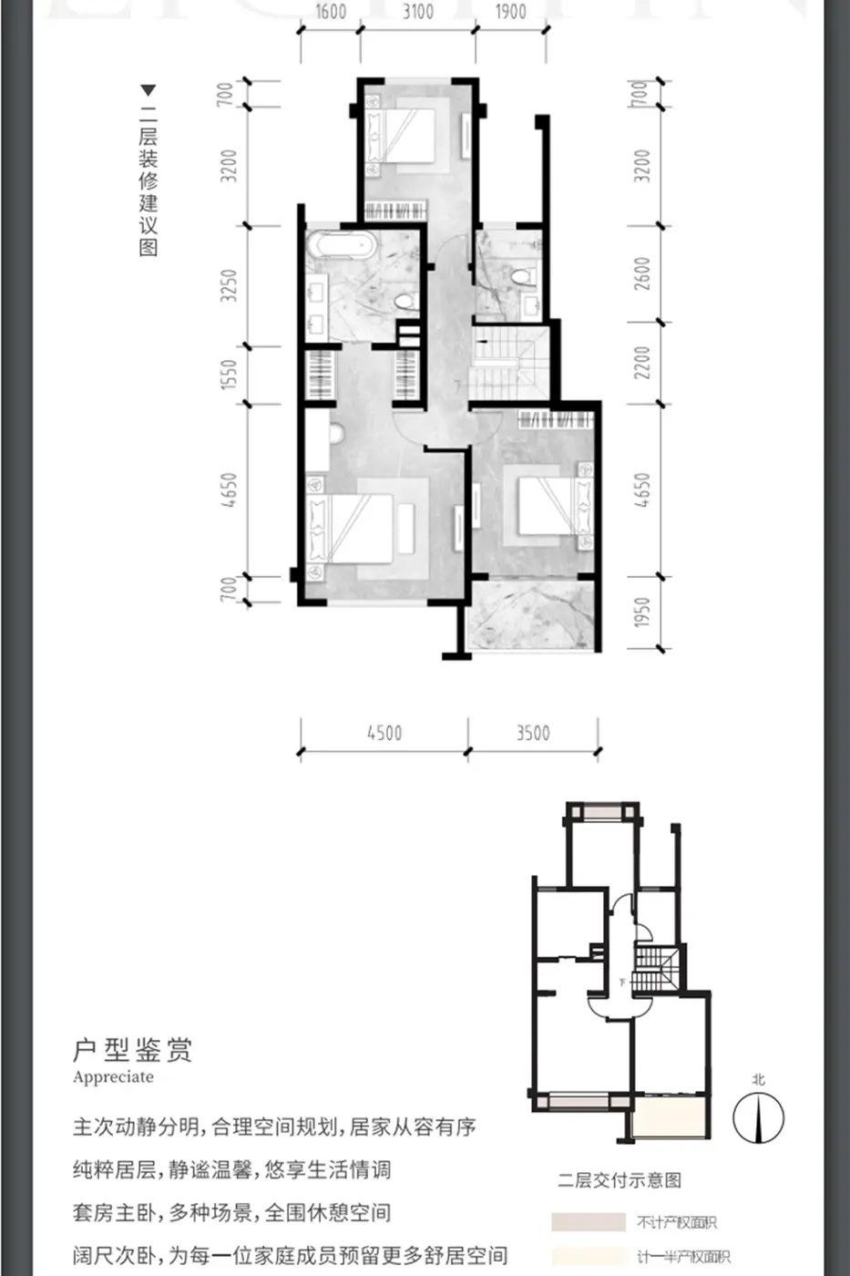
上叠A3户型 4室2厅1厨3卫
65535万建筑面积186.00㎡
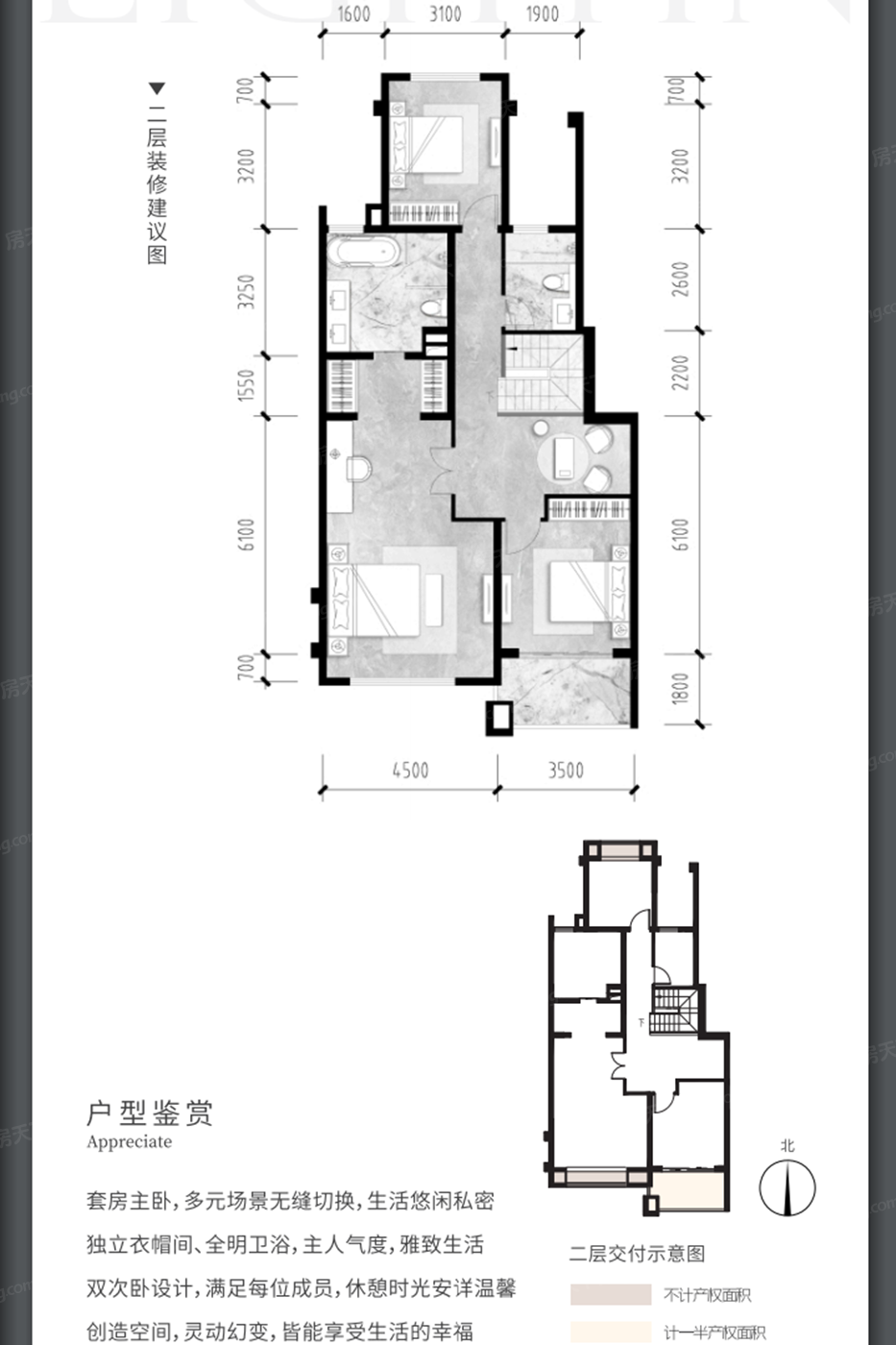
中叠A2户型 4室2厅1厨3卫
65535万建筑面积183.00㎡
163㎡户型 0室0厅0厨0卫
212万建筑面积163.00㎡
14#楼SOHO户型 0室0厅0厨0卫
47万建筑面积36.00㎡
14#楼LOFT户型 0室0厅0厨0卫
47万建筑面积36.00㎡
36㎡LOFT 0室0厅0厨0卫
47万建筑面积36.00㎡
36㎡ SOHO 0室0厅0厨0卫
47万建筑面积36.00㎡