上海
关闭
C
成都
H
合肥
杭州
N
南京
S
深圳
苏州
上海
Z
重庆
首页
新房
问答
资讯
登录
/
注册
您的位置:
首页
>
新房
>
承翰庭玺
>
在售户型
承翰庭玺
在售
地铁沿线
关注楼盘
首页
楼盘动态
在售户型
用户问答
楼盘相册
楼栋信息
楼盘详情
楼盘点评
周边配套
全部(
0
)
2室(
3
)
3室(
1
)
4室(
1
)
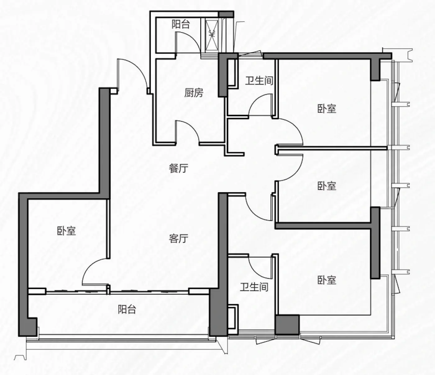
约127平
约127平 4室2厅1厨2卫
1433万
建筑面积127.00㎡