-
楼盘动态东原江山印月7#、10#共88套房源成功取证 2023-09-22
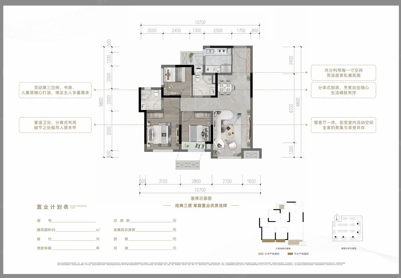
东原江山印月项目的7#和10#楼共推出了88套房源,已获得预售许可,预/现售号分别为510184202370018和510184202370019。 项目提供了多种户型选择,包括......
-
楼盘动态东原江山印月5#、11#共计171套房源取得预售许可 2023-04-21
东原江山印月项目近期取得了5#和11#楼共计171套房源的预售许可,涵盖的户型面积区间为约78.41至105.3平方米,清水销售单价大约在每平方米8662至11555元之间,总价范......
-
楼盘动态东原江山印月6#房源取证公告 2023-02-17
东原江山印月6#共44套房源已获得预售许可证,许可证编号为蓉预售字第510184202366716号。 项目提供多种户型选择,面积范围从78.41至105.3平方米不等,清水销售......
-
楼盘动态东原江山印月2#取证公告 2022-05-05
东原江山印月项目2#楼已正式取证,共计推出71套房源,涵盖83-89平方米的户型,均价在每平方米8873元至11113元之间。 登记购房的时间段为4月30日至5月1日。 ......
-
楼盘资讯东原江山印月计划于2023年9月交付使用 2022-04-19
东原江山印月预计在2023年9月完成交付,提供每平方米8800元的起始价格。 项目绿化覆盖率达到30%,容积率为2.4,采用毛坯形式交付。 周边教育资源丰富,包括辰居路小学以及......





- 成都东煜昌置业有限公司
- 70年
- 32334
- 106040
- 30%
- 2.40
- 暂无信息
- 835
- 住宅2.1元/㎡/月
- 东原仁知城市运营服务集团股份有限公司
- 毛坯
消息通知(您的信息将严格加密)
东原江山印月 在售
9800 元/㎡
微信扫码拨号